Двухуровневый потолок из гипсокартона своими руками. Вычисление уровня потолка
- Двухуровневый потолок из гипсокартона своими руками. Вычисление уровня потолка
- Двухуровневый потолок из гипсокартона с подсветкой по периметру. Особенности
- Двухуровневый потолок из гипсокартона размеры. Расчеты и составление чертежа многоуровневой потолочной конструкции
- Двухуровневый потолок из гипсокартона на кухне. Разновидности конструкций
- Двухуровневый потолок с подсветкой по периметру. Разновидности двухуровневого потолка
- Двухуровневый потолок каркас. Нюансы составления проекта декоративного потолка
Двухуровневый потолок из гипсокартона своими руками. Вычисление уровня потолка
Опыт подсказывает, что даже в современных, новых домах, плиты потолочного перекрытия не всегда ровные, при том, что потолок должен быть идеально ровным и горизонтальным.

Разметка потолка лазерным уровнем
Именно поэтому требуется «отбить» уровень горизонтальный и перепроверить плоскостность потолка. Как это сделать?
- ближе к одному из углов, на стене, на расстоянии 10-20см от потолка, делается отметка карандашом или маркером;
- с помощью уровня эта же метка транспортируется и на остальные стены – по 2-3 метки на каждой;
- при помощи малярного шнура, который выставляется по меткам, отбиваем горизонтальные линии на стенах всего помещения – получается горизонтальная плоскость;
- измеряется расстояние от потолка до линии по углам комнаты и на середине каждой стены, высчитывается разница;
- в случае, если полученные значения разницы не более 5мм, то можно принимать плоскость потолка за первый уровень многоярусной конструкции, а имеющееся отклонение, будут выровнены при шпаклевании;
- при разнице от 5мм до 5см – потолок штукатурится с применением армирующей сетки и уже после этой операции он становится первым уровнем;
- при разнице более 5см уже не обойтись без капитальных работ по ликвидации такого перепада с помощью подвесной конструкции.
Помимо плоскости следует тщательно проверить и качество поверхности, которая в дальнейшем будет шпаклеваться или будет находиться под подвесным потолком.
- в помещении побелены по штукатурке потолок – побелку необходимо смыть, старую штукатурку снять до самого основания, потом заново заштукатурить, зашпаклевать;
- зачастую в старых зданиях перекрытия выполнены из дерева, в этом случае потолок нужно однозначно прятать, а учитывая, что в подобных домах потолки достигают 2,7 или даже 3-х метров, то это не нанесет существенного урона пространству комнаты и даст свободу полету фантазии в реализации любой гипсокартонной конструкции на потолке;
- если оказалось, что потолок надежный, прочный, все коммуникации на нем проложены, оштукатурен, тогда можно его просто подшпаклевать и применить в качестве первого уровня;
- часто в новых домах потолок это просто голая, бетонная плита, в этом случае, его придется штукатурить, шпаклевать и прятать за подвесной гипсокартонной конструкцией.
Зачастую финансово интересно и первый и второй уровень потолка сделать из гипсокартона, потому что операции штукатурки, шпаклевки со снятием старых слоев, будут по затратам не намного дешевле, чем полностью новая конструкция из ГКЛ, при том, что качественно выполненный первый уровень из ГКЛ, «крадет» у помещения не более 5-6см.
Двухуровневый потолок из гипсокартона с подсветкой по периметру. Особенности
Двухуровневый потолок из гипсокартона представляет собой модную конструкцию, которую можно дополнять подсветкой и комбинировать с разными отделочными материалами. Благодаря правильному сочетанию цветов двухъярусные потолки могут визуально изменять пространство, делая его шире или уже.
К главным преимуществам данных конструкций можно отнести слудующее:
- огромный выбор дизайна;
- доступная цена;
- быстрый монтаж;
- маскировка строительных дефектов на потолке.


Подвесной потолок можно устанавливать не только в больших, но и в маленьких помещениях, размещая основной уровень конструкции на расстоянии 3-7 см от плиты покрытия. Сложность форм и расцветка потолка должна зависеть от функционального назначения комнат. Например, для кухни рекомендуется выбирать светлые оттенки и комбинировать их с цветными вставками. Таким образом можно будет оригинально отделить столовую от зоны приготовления пищи. При этом над рабочей зоной лучше разместить точечные светильники, а над обеденной можно повесить люстру.
Что же касается зала и спальни, то в них лучше всего сделать классический вариант потолка и украсить его по периметру диодной лентой. Необычным решением станет украшение такой конструкции имитацией звездного неба. Для детских комнат можно выбрать простые двухуровневые потолки или дополнить их сложными геометрическими фигурами.
Красиво в детских смотрятся и конструкции с фотопринтом и росписью.
Главной особенностью двухъярусных потолков является то, что их установка требует предварительного составления схемы конструкции, при создании которой учитываются некоторые факторы.
- Высота помещения. Обычно подвесная система забирает 10 см высоты потолка. Чтобы сэкономить пространство, можно сделать второй ярус ровным.
- Уровень влажности. Если в комнате наблюдается повышенная влажность, то листы гипсокартона необходимо обрабатывать специальными смесями. Особенно это касается потолков кухни и ванной.


- Освещение. Месторасположение светильников и ламп необходимо продумать еще до начала монтажных работ. Благодаря источникам освещения можно добиться красивого эффекта в интерьере.
- Форма конструкции. Потолок с двойной конфигурацией должен гармонично сочетаться с общим видом помещения. В одних комнатах он может иметь прямые линии, а в других удивит необычными узорами и фигурами.
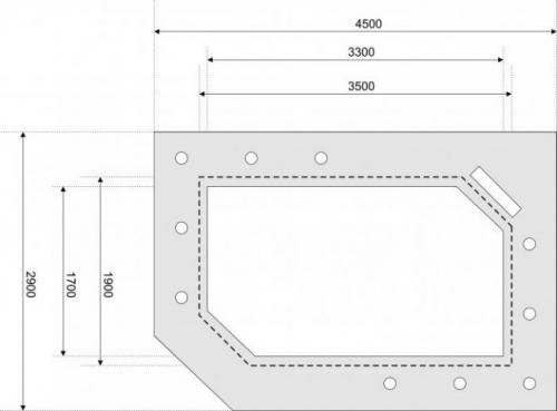
Двухуровневый потолок из гипсокартона размеры. Расчеты и составление чертежа многоуровневой потолочной конструкции
Для того, что бы соорудить своими руками красивый и оригинальный многоуровневый потолок из гипсокартона, к тому же с подсветкой, потребуется больше времени и соответствующей подготовки. Начинать в данной ситуации лучше всего с расчетов и с составления чертежа. Имея под рукой эскиз с размерами каждой площади, с указанием необходимого количества профилей, подвесов и деталей крепежа, работать всегда легче.
Уровнять потолок по горизонтали с помощью гипсокартона, задача не сложная. Другое дело соорудить правильно последующие уровни и грамотно расположить светильники. Подсветка в данном случае является ключевым элементом всей подвесной конструкции, поэтому лучше всего будет, когда вы на руках имеет и чертеж, и схему подсветки. Благодаря чертежу станет легче монтировать в дальнейшем сложные радиусы, правильно укладывать в верхней части помещения кривые элементы и объемные фигуры. Предложенная схема наглядно показывает, как должен выглядеть подвесной многоуровневый потолок, оборудованный скрытой светодиодной подсветкой.
Благодаря чертежу вы получаете полную картину о том, как будет с помощью подвесной системы осуществлено зонирование внутреннего пространства. На эскизе всегда можно предварительно просчитать насколько будет опущен потолок, и в каком месте помещения следует делать ступени или уступы. К тому же предварительный расчет позволит вам сэкономить средства при покупке расходных материалов и комплектующих. Обрезки профилей и лишний гипсокартон могут больше не пригодиться, поэтому лучше в работе опираться на точное количество деталей и материала.
Важно! Не имея опыт проведения подобных работ, лучше всего ограничиться сооружением более простой конструкции. Минимальное отличие двух и более плоскостей друг от друга по высоте – толщина ГКЛ. Как правило, это 8-10см – средняя толщина листов, используемых для потолочных работ.
На чертеже следует указать оптимальную высоту всех вертикальных элементов подвесной конструкции. Соответствует она ширине направляющих и продольных профилей – 50-60мм. Максимальная высота многоуровневого потолка может достигать 20см, не более. На предлагаемом чертеже указаны примерные размеры для двухуровневого гипсокартонного потолка средней сложности.
Во время составления чертежа, все точки отсчета следует делать от угла комнаты, где самое низкое расположение базовой потолочной поверхности. На чертеже это место отмечают другим цветом, далее отталкиваясь в расчетах от этого значения высоты.
Создавая чертеж, можно сделать вывод – соорудить подвесной потолок в два, в три уровня не так уж и сложно. Единственное условие, на все работы уйдет больше времени.
Двухуровневый потолок из гипсокартона на кухне. Разновидности конструкций
Простейшая конструкция гипсокартонного потолка – это одноуровневая, в которой покрытие занимает одним ровным слоем всю площадь комнаты. При таком нехитром дизайне монтажные работы упрощаются, а поверхность получается идеально ровной, к ней можно применять различные способы декоративной отделки: покраску, поклейку бумажных, виниловых или жидких обоев. Другие достоинства – это возможность встроить внутрь светильники, повышенная теплоизоляция и защита от шума.

Многоуровневые потолки из гипсокартона представлены многообразием идей и проектов, но у всех из них одно правило: чем ниже уровень, тем меньше он по площади. Это касается и вариантов с прямыми углами и линиями, и сложных изогнутых форм. Каждый следующий уровень монтируется на каркас предыдущего верхнего.

Самая простая идея двухуровневого потолка на кухне – 2 зоны с прямым переходом: большая по площади над основным пространством кухни, а меньшая, заниженная на 10-15 см – над плитой, столешницей и мойкой. В гостиной можно оригинально использовать два уровня таким образом: нижний уровень в форме рамки по всему периметру комнаты вдоль стен, а верхний в центре этой рамки. Получается своеобразное прямоугольное углубление в середине помещения, в зоне перехода можно спрятать боковые светильники, которые создадут дополнительный эффектный свет.

Многоуровневые потолки в гостиной и на кухне должны проектироваться таким образом, чтобы отдельные ярусы сочетались друг с другом и создавали гармонию. Слишком сложная конструкция из нагромождений объемных фигур может выглядеть абсурдно несмотря на высокие затраты на ремонт и материалы. На кухне для создания оригинального интерьера вполне достаточно двух уровней, а в гостиной максимум трех.

Сложные фигурные каркасы хорошо применять в больших помещениях, где несколько уровней навесного потолка не отнимут много свободного пространства. Гипсокартон легко режется по кривой, но для монтажа прочных изогнутых фигур необходимы жесткие металлопрофили. Фигурный каркас может не только снизить высоту в комнате, но и визуально увеличить отдельную зону в помещении, если потолок над ней имеет углубление, т.е. более высокий уровень.

Двухуровневый потолок с подсветкой по периметру. Разновидности двухуровневого потолка
При разработке дизайн-проекта подвесного потолка из гипсокартона в двух уровнях, профессионалы предлагают следующие варинаты конструктивных решений:
- Рамочный ортогональный потолок. Классическое решение, которое подходит практически для любой комнаты с правильной геометрией. Конструкция характерна наличием ряда особенностей:
- По периметру комнаты устраивается короб из гипсокартона в виде рамки.

Короб из гипсокартона
- Ширина короба составляет примерно 10% – 15% от наименьшего габарита помещения.
- Толщина конструкции подбирается, исходя из высоты эксплуатируемого пространства, но, как правило, не менее 150 – 200 мм.
- В центре комнаты монтируется второй уровень подвесного потолка, внутри короба.
- Толщина второго яруса составляет около 50 мм.

Монтаж двухуровнего потолка
- Короб может отстоять от стен на расстояние до 20 – 50 мм, что создаёт эффект плавающей конструкции.
- По периметру короба устраивается точечное освещение, а в центре второго яруса часто вешается изящная люстра.
- Между первым и вторым ярусом, а также в месте сопряжения плавающего потолка со стенами часто монтируется светодиодная или неоновая лента для усиления визуального эффекта.

Монтаж второго уровня
- Диагональный потолок. Характерен для стиля модерн или хай-тек. Поверхность потолка пересекают диагональные линии из короба, на котором на одинаковом или разном расстоянии друг от друга устраиваются точечные светильники.

Диагональный потолок
Потолок данной категории мотет быть ассиметричным и не зависит от формы комнаты. Чаще всего, такая конструкция оптимально сочетается с аналогичными диагональными линиями, используемыми в отделке стен.
Разные каскады данной конструкции могут окрашиваться в яркие цвета и контрастировать между собой.

Интерьер с диагональным потолком
- Зональный потолок. Для такой конструкции характерно создание единой плоскости в одном уровне, с локальными понижениями или повышениями, выполненными из гипсокартонных коробов.
Двухуровневый потолок каркас. Нюансы составления проекта декоративного потолка

Разработать и придумать оригинальный по внешнему виду двухуровневый потолок из ГКЛ не сложно. Гораздо труднее реализовать задумку на практике. Однако, благодаря современному строительному рынку, в продаже можно встретить уже готовые конструкции потолка, которые останется только закрепить к базовому основанию.

Если эскиз делается по специальному проекту, то до того, как приступить к установке каркаса и его обшивке, стоит составить предварительный чертеж на бумаге, который облегчит нанесение разметки, а также подсчет нужного количества материалов и комплектующих. При этом за основу примите следующие моменты:
- высота помещения. Двухуровневые потолки заберут у комнаты примерно 10 см высоты. Для экономии пространства выравнивают базовое основание, а на него монтируют второй уровень декоративного потолка;
- освещение. Расположение источников искусственного света продумывается еще на этапе проектирования. Благодаря правильному размещению приборов получится разграничить помещение на разные по функциональности участки (зоны), или акцентировать внимание на отдельных декоративных элементах;
- влажность. В помещениях с повышенной влажностью отделку проводят специальным типом гипсокартона – влагостойким. Его листы имеют характерный зеленый оттенок и соответствующую маркировку. Для кухни можно применять обычный ГКЛ, обработанный минимум двумя слоями грунтовочного раствора.
Также потребуется определиться с типом каркаса. Вы можете сделать металлический или деревянный каркас. Основание из деревянных брусьев будет стоить дешевле, при этом материал обладает длительным эксплуатационным сроком и разными размерами.

Альтернатива дереву – металлический профиль, имеющий более легкий вес, выдерживающий разные нагрузки, отличающийся гибкостью. Благодаря последнему свойству материала, его часто используют для создания сложных криволинейных конструкций, так как он может принимать практически любую форму, в отличие от деревянных аналогов.